Locales Comerciales de Obra Nueva en Pontevedraref(359)
125.000€
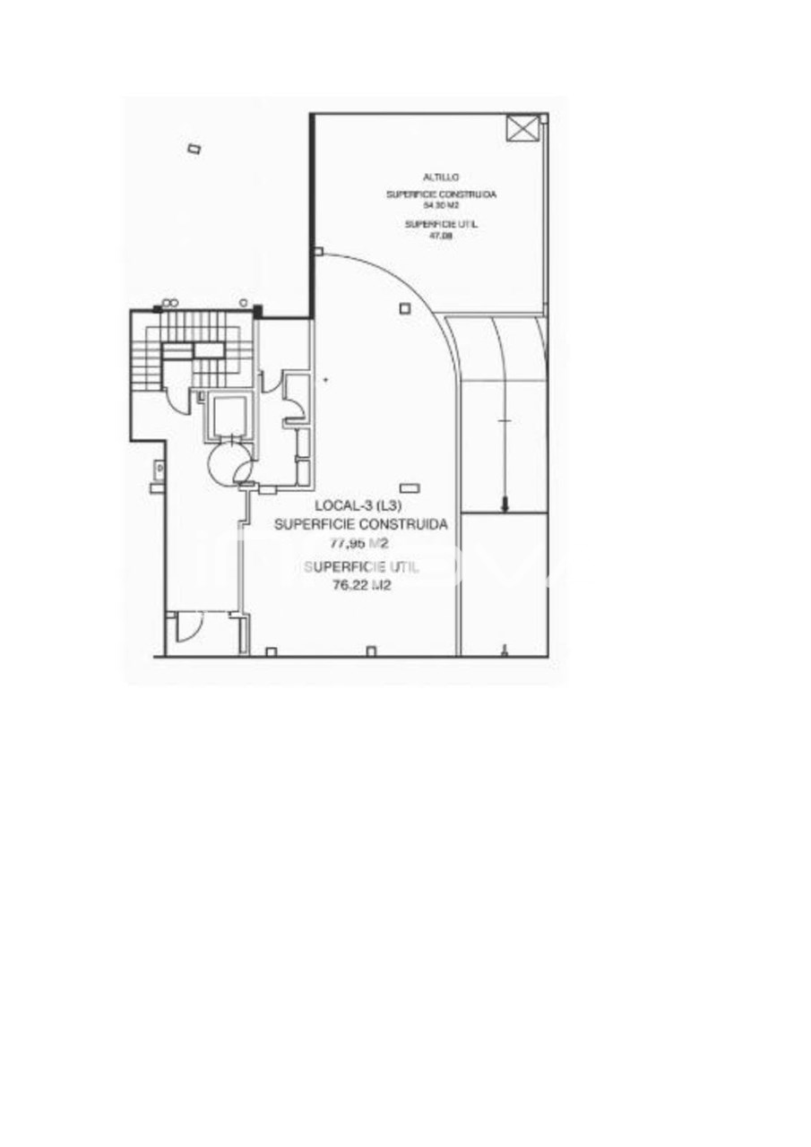
Comprar Local comercial 78m² en Pontevedra. Locales Comerciales de Obra Nueva en Pontevedra,, bien comunicado.
Información
Se vende local comercial con fachada a calle principal de 77,95 m.2 y un altillo de 47,90 m.2.
- Precio: 125.000€
- Tipo de inmueble: Local comercial
- Tipo de anuncio: Venta
- Superficie: 78m²
Ubicación
Pontevedra (Zona con la ubicación aproximada)
Pontevedra
Comprar local comercial de 78m² en Pontevedra. Locales Comerciales de Obra Nueva en Pontevedra. Zona con la ubicación aproximada.
Clasificado como: bien comunicado.
Locales Comerciales de Obra Nueva en Pontevedra por 125.000€. Listado dentro de Pontevedra. Disponibles 2 fotografias para (comprar local comercial en Pontevedra).